17 LAKESHORE DR, Rural Wetaskiwin County, Alberta T0C2V0
Contact us about this property
Highlights
Estimated valueThis is the price Wahi expects this property to sell for.
The calculation is powered by our Instant Home Value Estimate, which uses current market and property price trends to estimate your home’s value with a 90% accuracy rate.Not available
Price/Sqft$890/sqft
Monthly cost
Open Calculator
Description
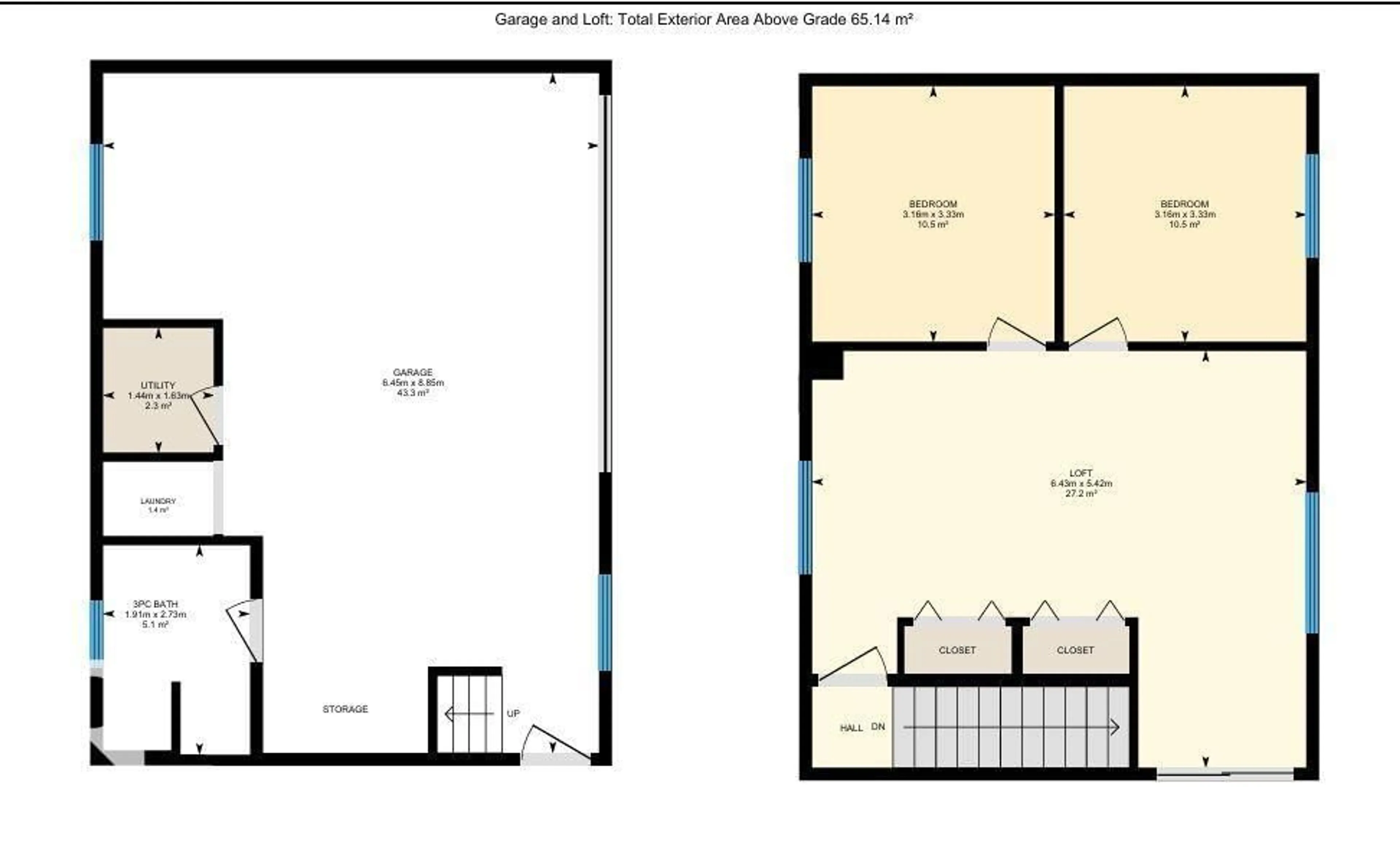
This Lakefront Bungalow in Grandview was completely renovated in 2023 with hardie board siding, stone, and shingles on the outside, with a complete make over on the inside! It also has a double detached garage with 701sq/ft of living space above! Through the fenced back yard, and complete wrap around deck to enter the home with an open concept Dining room, Kitchen, and Living room with large windows throughout providing lots of natural light and views of the lake. Two bedrooms and a 3 piece bathroom complete the floor plan of the modernized cabin home that also has Air Conditioning. The Garage is heated with a bathroom, and laundry with steps up to the guest living space. The loft is made up of two more bedrooms and a spacious family room with a patio door to the balcony deck. The property is beautifully landscaped with nothing left to do but unwind and enjoy life at the lake! The lot beside is also available for added space if needed. (id:39198)
Property Details
Interior
Features
Main level Floor
Living room
6.94 x 5.9Dining room
3.32 x 3.07Kitchen
3.12 x 2.04Primary Bedroom
3.11 x 2.85Property History
46






