Contact us about this property
Highlights
Estimated valueThis is the price Wahi expects this property to sell for.
The calculation is powered by our Instant Home Value Estimate, which uses current market and property price trends to estimate your home’s value with a 90% accuracy rate.Not available
Price/Sqft$256/sqft
Monthly cost
Open Calculator
Description
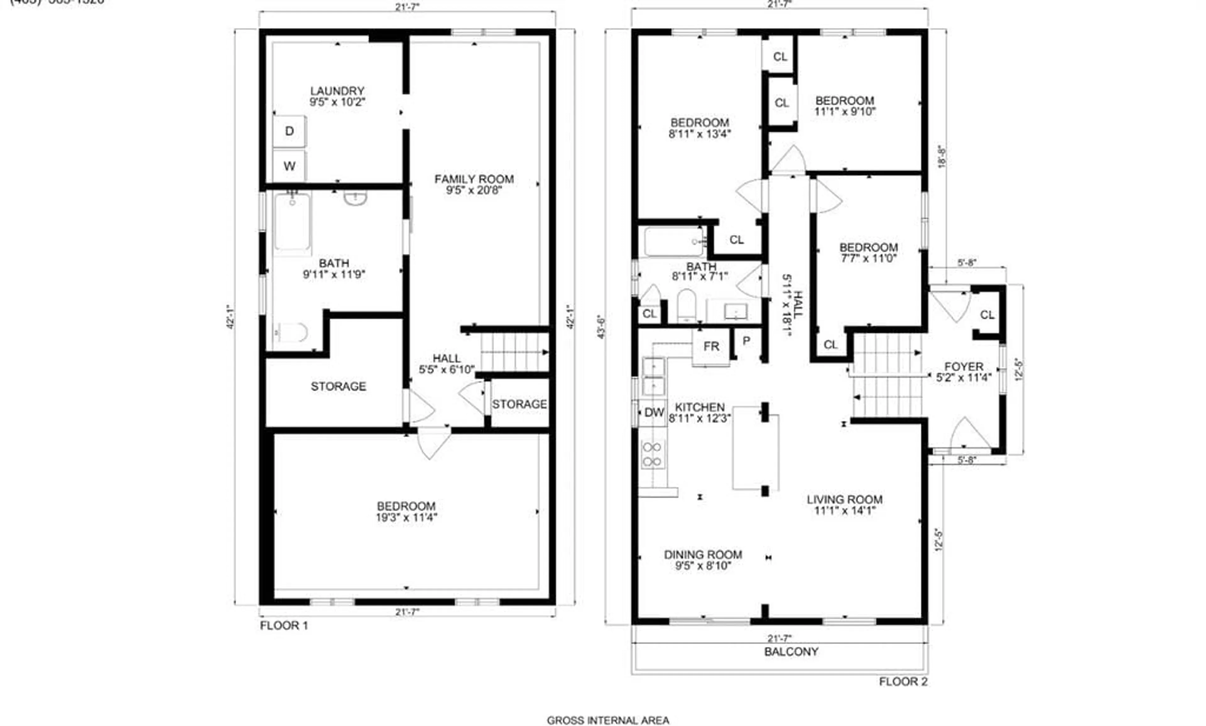
ARE YOU LOOKING FOR SOMETHING A LITTLE DIFFERENT? This neat & clean Bassano bi-level is not a cookie-cutter home & in all of the best ways. You might expect a typical, tiny entry & this one is more like a spacious foyer with a closet, place to sit down & a second exterior door to access the fenced back yard. Bright, open kitchen, dining & living area has the perfect blend of privacy & wall area for functional furniture placement but flexibility to designate more space as living room or eating area. All kitchen appliances are new within last 3 years. You will enjoy the workspace, pantry & being able to look into the living area without seeing into the kitchen from the living room and front door. Eating bar / buffet line is wonderful for larger family gatherings. Sliding doors to front deck for easy bbq-ing & outdoor dining. Main bath has been tastefully renovated with attractive new tub & surround, vanity & attractive quartz countertop. This bathroom closet for lots of towels & family toiletry storage will change your life! Primary bedroom with dual closets accommodates king bed; 2 smaller bdrms have good closets. Modern, easy maintenance flooring throughout main is a warm, traditional colourway that compliments all of your wood furniture. Basement is developed with enormous bedroom, perfect for older children sharing or long stay guests, family room, 3 pc bath, storage & laundry. Family room is bright & with higher ceilings; it's just the spot for your crew to congregate. Laundry / storage room has plenty of space for deep freeze, extra fridge & bulk shop storage. Seller has 2 brand new exterior doors just waiting for the contractor to install. Exterior is low maintenance with durable metal siding. Private, fully fenced yard is a blank canvas for your landscape plans. Extra long driveway for your RV, boat & work truck that you like to park off street. This home is high on value; compare the size & improvements to others on market & see the difference. Don't delay to book your private showing; listing inventory is low in Bassano. View the virtual tour by clicking on the "video" button. You can be into your new home before summer!
Property Details
Interior
Features
Main Floor
4pc Bathroom
8`11" x 7`1"Bedroom - Primary
8`11" x 13`4"Bedroom
11`1" x 9`10"Bedroom
7`7" x 11`0"Exterior
Features
Parking
Garage spaces 1
Garage type -
Other parking spaces 3
Total parking spaces 4
Property History
21





