15008 Prestwick Blvd, Calgary, Alberta T2H 0L8
Contact us about this property
Highlights
Estimated valueThis is the price Wahi expects this property to sell for.
The calculation is powered by our Instant Home Value Estimate, which uses current market and property price trends to estimate your home’s value with a 90% accuracy rate.Not available
Price/Sqft$326/sqft
Monthly cost
Open Calculator
Description
Welcome to this beautifully appointed 3-bedroom townhouse, ideally located on a picturesque, tree-lined street. Perfectly positioned directly across from a large children’s park and adjacent to a church, this home offers an exceptional setting for families and those seeking a strong sense of community. With a bus stop right out front and just a 15-minute walk to the grocery store and all the amenities of McKenzie Towne, convenience is truly at your doorstep. The main level features a warm and inviting layout with rich pecan flooring. The well-designed kitchen showcases full-height shaker-style cabinetry with elegant cove moulding, a functional island with seating, a dedicated dining area, and a fridge with water and ice. A newer LG dishwasher adds everyday convenience. The cozy living room is anchored by a charming corner fireplace, creating the perfect space to relax or entertain. Upstairs, you’ll find a versatile computer or flex space, along with two generously sized primary bedrooms—each complete with its own private ensuite, offering ideal separation for roommates, guests, or family members. The fully developed lower level expands your living space with a third bedroom or recreation room, a full 4-piece ensuite, closet, and additional storage—perfect for guests or a private retreat. Additional highlights include a washer and dryer (2024), central vacuum system, portable A/C unit with remote, and blackout window coverings throughout. Step outside to enjoy your private fenced backyard, complete with a patio set and gas BBQ hookup—perfect for summer evenings. A detached double garage with built-in shelving adds both convenience and storage. As part of a well-managed condo, even your backyard lawn care is taken care of—offering low-maintenance living without sacrificing outdoor space.
Property Details
Interior
Features
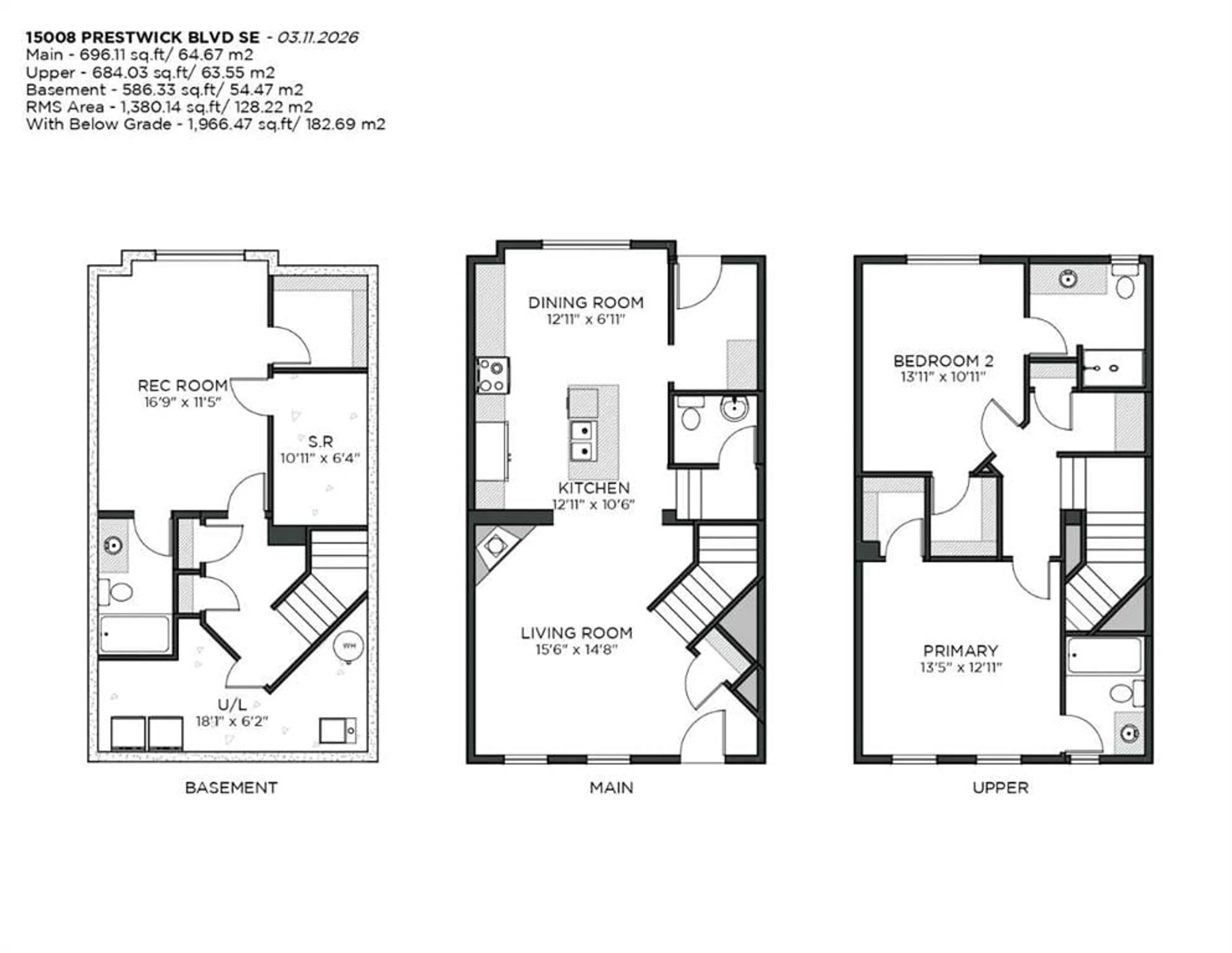
Main Floor
Kitchen
12`11" x 10`6"Dining Room
12`11" x 6`11"Living Room
15`6" x 14`8"2pc Bathroom
0`0" x 0`0"Exterior
Parking
Garage spaces 2
Garage type -
Other parking spaces 0
Total parking spaces 2
Property History
46






