2701 28 Ave #3, Calgary, Alberta T2T 1J7
Contact us about this property
Highlights
Estimated valueThis is the price Wahi expects this property to sell for.
The calculation is powered by our Instant Home Value Estimate, which uses current market and property price trends to estimate your home’s value with a 90% accuracy rate.Not available
Price/Sqft$550/sqft
Monthly cost
Open Calculator
Description
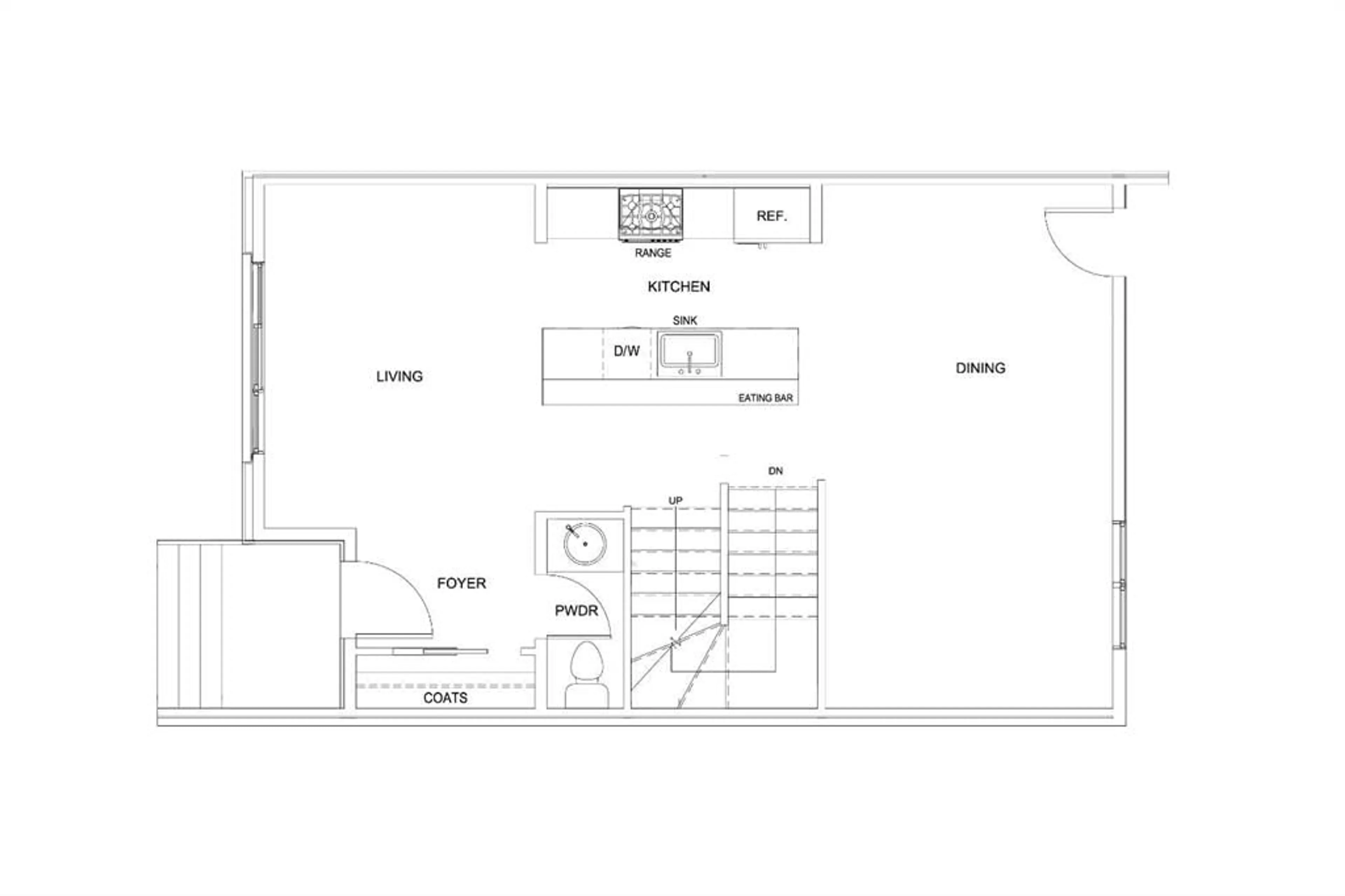
Thoughtful design meets everyday comfort in this beautifully finished 4-BED, 3.5-BATH Killarney townhome with a FULLY FINISHED BASEMENT with a large Rec Room, bedroom, bathroom & wet bar, located in one of Calgary’s most desirable inner-city communities. Known for its walkability, mature tree-lined streets, and strong community feel, Killarney offers a connected lifestyle with timeless neighbourhood charm. Enjoy walking to Monogram Coffee, biking to brunch at Brekkie Café, or heading minutes to Marda Loop, one of Calgary’s most vibrant inner-city hubs offering boutique shopping, fitness studios, restaurants, and everyday amenities. Commuting is effortless with quick access to Bow Trail, Crowchild Trail, and nearby LRT stations, providing easy access to downtown and west Calgary. Families will appreciate proximity to Killarney School, Ernest Manning High School, parks, playgrounds, and the Killarney Aquatic & Recreation Centre, while outdoor enthusiasts are close to Shaganappi Golf Course and pathway networks. Inside, the front foyer creates a functional entry before opening into a bright open-concept main floor. The living, dining, and kitchen areas connect seamlessly, with a designated dining space ideal for entertaining or large family meals. The kitchen is anchored by a large island with seating, perfect for meal prep, casual dining, and hosting, complemented by ample cabinetry and modern finishes. The living room features a built-in electric fireplace with decorative shelving on either side, adding warmth and a stylish focal point. A spacious front closet on the main floor provides excellent storage to tuck everything away and keep daily life organized. Upstairs, the home feels bright and airy with a skylight bringing in natural light. The primary suite offers a true retreat with a recessed ceiling, walk-in closet and a spa-inspired ensuite featuring a double vanity, freestanding tub, and glass walk-in shower. Two additional bedrooms, a full bathroom, and upper-level laundry complete this functional layout. The fully finished basement is designed for entertaining and flexibility, featuring a spacious rec room, wet bar with built-in cabinetry, along with a fourth bedroom and full bathroom—perfect for guests, a home office, or extended family. Step outside to a backyard ideal for kids, pets, and summer BBQs, offering additional space to relax and entertain. Situated on a quiet residential street just minutes to Marda Loop, 17th Avenue, parks, and schools, this Killarney townhome offers the ideal balance of inner-city convenience and comfortable neighbourhood living. ** MOVE IN READY IN MAY **
Property Details
Interior
Features
Main Floor
Living Room
13`5" x 10`7"2pc Bathroom
Kitchen
8`7" x 11`2"Dining Room
20`6" x 11`4"Exterior
Features
Parking
Garage spaces 1
Garage type -
Other parking spaces 0
Total parking spaces 1
Property History
16






