3550 45 St #102, Calgary, Alberta T3E 3V2
Contact us about this property
Highlights
Estimated valueThis is the price Wahi expects this property to sell for.
The calculation is powered by our Instant Home Value Estimate, which uses current market and property price trends to estimate your home’s value with a 90% accuracy rate.Not available
Price/Sqft$657/sqft
Monthly cost
Open Calculator
Description
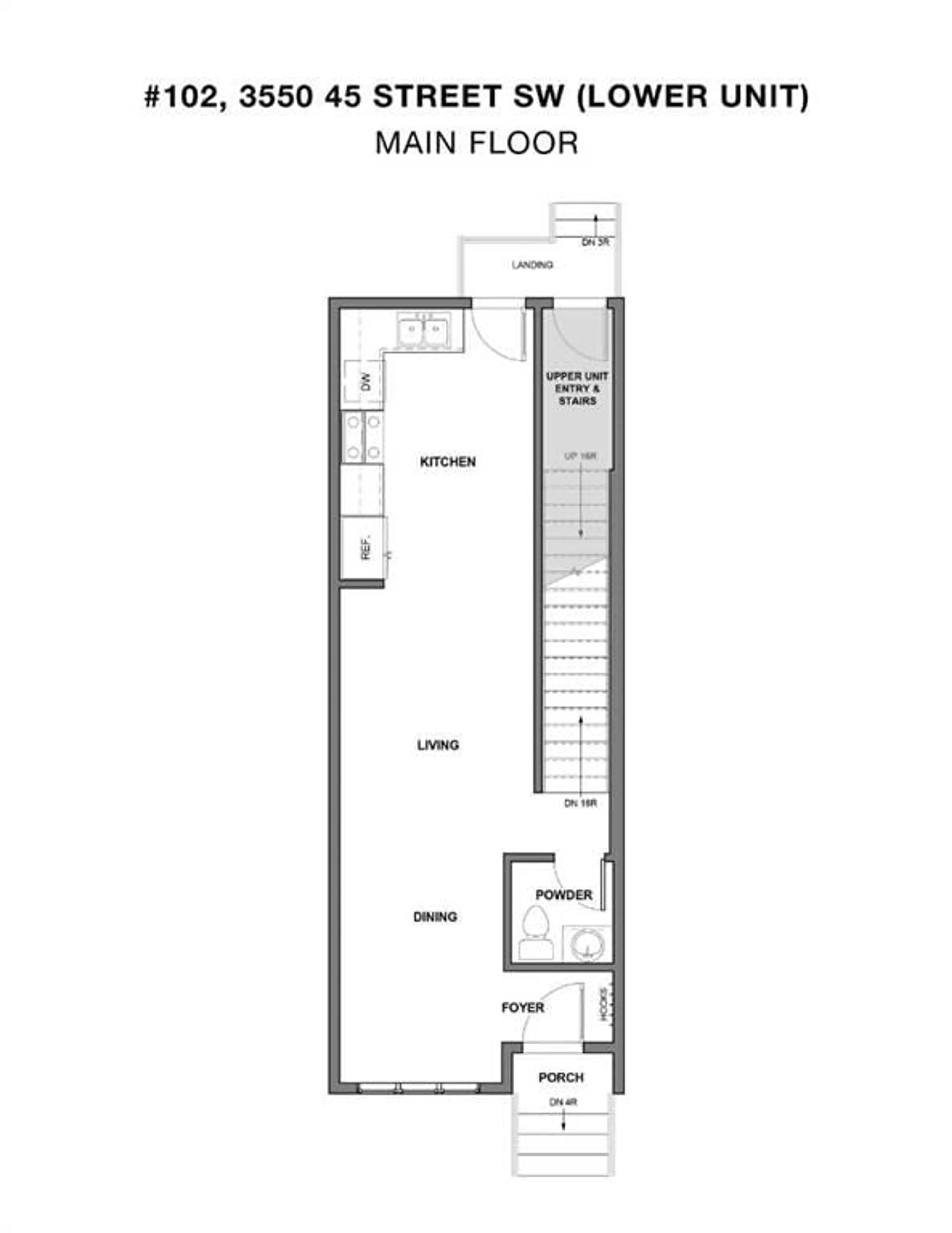
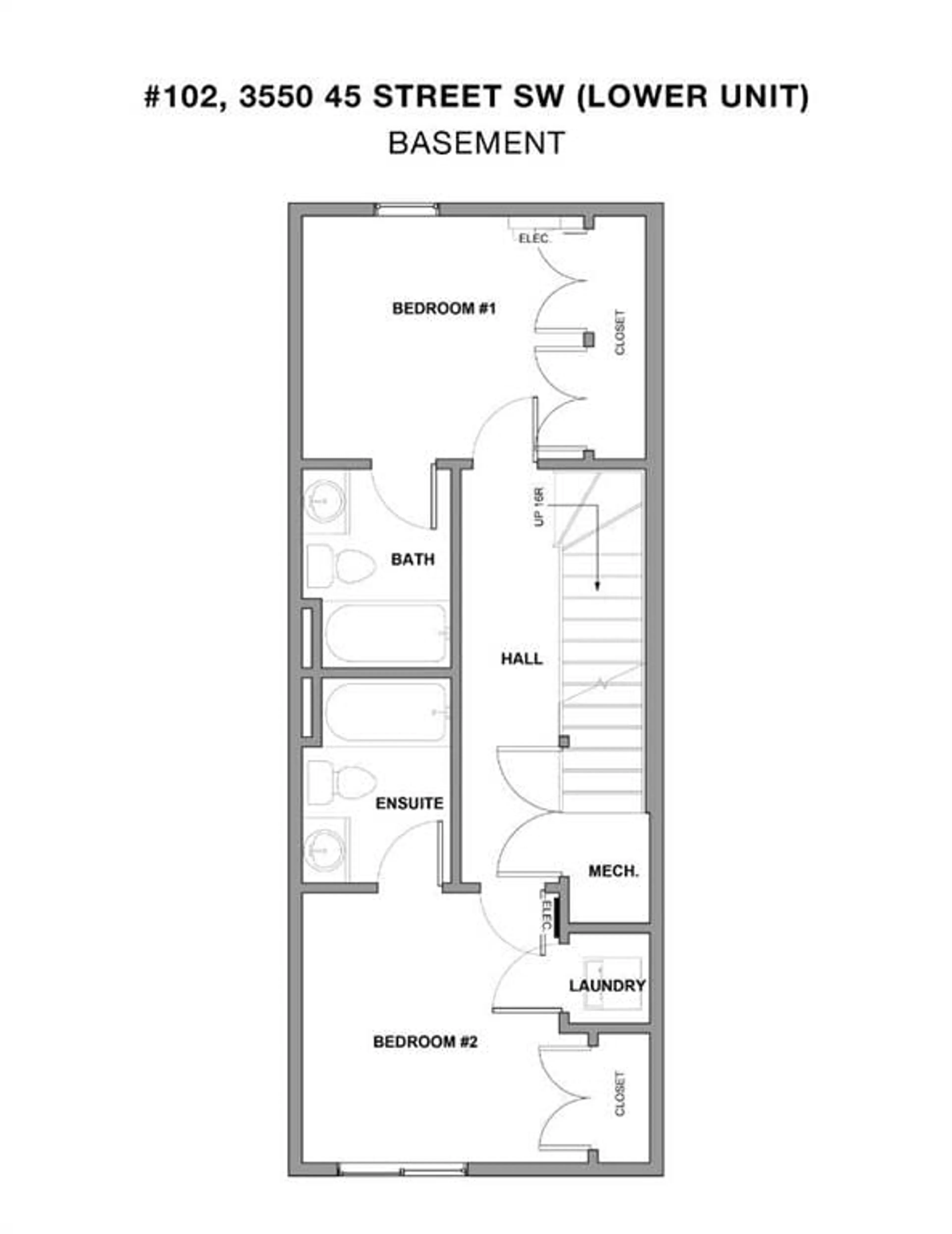
EFFECTIVE PRICE OF JUST $342,857 for FIRST TIME BUYERS who qualify for the new GST REBATE!* This is an incredible opportunity for a BRAND NEW, MOVE-IN READY TOWNHOME in Glenbrook! Perfect for a savvy investor, this townhome project is AIRBNB FRIENDLY, plus first-time home buyers could qualify for up to a 100% GST REBATE* on their purchase! This move-in ready unit boasts a sunny main floor plus a FULLY FINISHED BASEMENT totalling nearly 1,000 SQ FT of developed living space, with 2 beds & 2.5 baths. Accessible by a private entrance facing the street, the sunny main floor showcases low-maintenance luxury vinyl plank (LVP) flooring, and an open-concept living space with large windows. The modern kitchen features 2-tone slab-style cabinetry, quartz counters, and a Samsung stainless steel appliance package including a French-door refrigerator and ceramic top stove. The adjacent dining room is perfect for family meals and entertaining, while the living room's oversized window fills the space with natural light. A stylish 2-pc powder room completes this level. Downstairs, 2 bedrooms and 2 full bathrooms reside. Each bathroom boasts custom cabinetry, quartz counters, undermount sinks, and tiled tub/showers. Completing the basement is a convenient laundry closet. Durable and stylish, the exterior features Hardie Board and Smart Board detailing, and brushed concrete steps and walks. Located in the heart of the sought-after SW inner-city community of Glenbrook, these brand-new townhomes boast a fantastic location right across the street from Glenbrook School and the Glenbrook Community Association. A number of major amenities are located within an easy 15-min walk, including Safeway, Glamorgan Bakery, and multiple restaurants including Richmond’s Pub. Plus, nearly every imaginable amenity can be found in nearby Westhills and Signal Hill Centres which are just a 6 minute drive away. Although peacefully tucked away on a lovely residential street, Sarcee Trail and Richmond Rd are both readily accessible, making everyday commuting around the city a breeze! Make this new townhome yours! *Interior photos are taken from a similar project by the same builder - details may vary. *Buyers must qualify for the GST rebate program, enquire for details. *VISIT MULTIMEDIA LINK FOR FULL DETAILS INCLUDING FLOORPLANS*
Property Details
Interior
Features
Main Floor
Living Room
14`0" x 7`11"Kitchen
13`7" x 9`6"Dining Room
10`0" x 7`0"2pc Bathroom
0`0" x 0`0"Property History
47






