3720 Quesnay Wood Dr #602, Calgary, Alberta T3E 7H5
Contact us about this property
Highlights
Estimated valueThis is the price Wahi expects this property to sell for.
The calculation is powered by our Instant Home Value Estimate, which uses current market and property price trends to estimate your home’s value with a 90% accuracy rate.Not available
Price/Sqft$568/sqft
Monthly cost
Open Calculator
Description
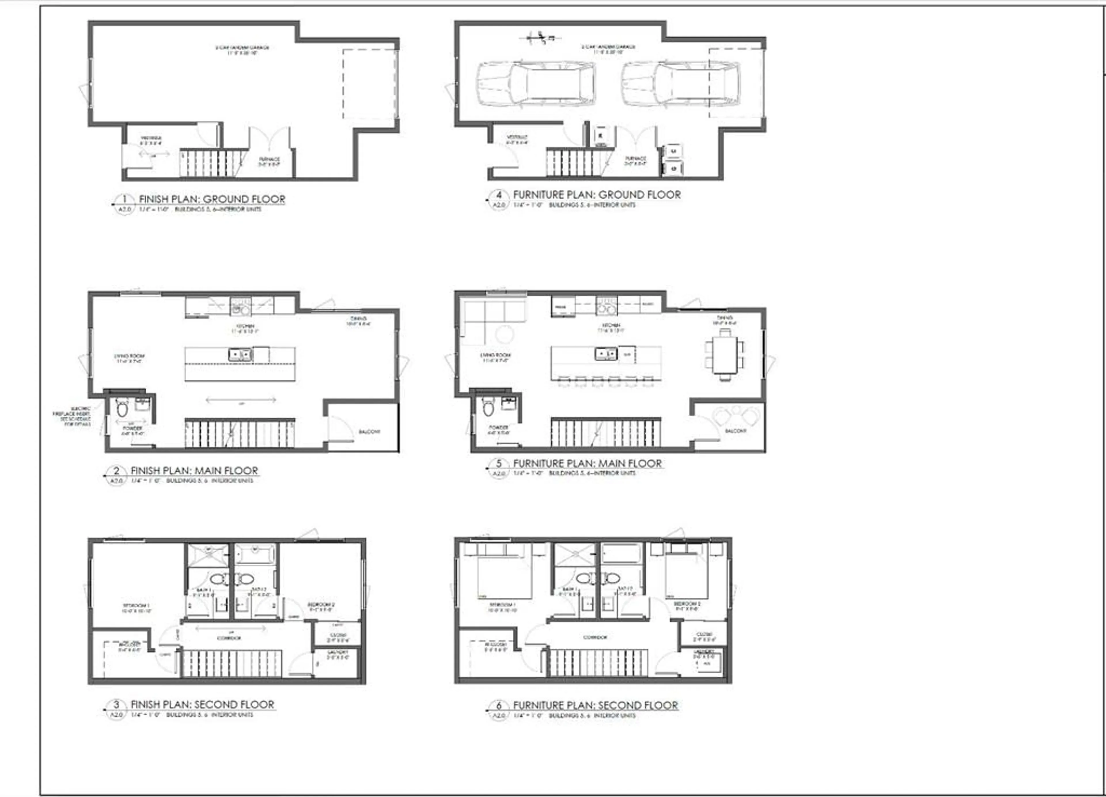
Luxurious Townhome in Currie Barracks - A Legacy of Distinction ONE OF 30 LUXURY TOWN HOMES IN CURRIE BARRACKS. Welcome to an exquisite townhome nestled within the prestigious Nichola community in Currie Barracks. This master-planned intercity neighborhood is just 7 minutes from downtown, providing effortless access to an array of exceptional dining, shopping, and cultural attractions. Spanning 1195.26 sq. ft., this thoughtfully designed residence features two bedrooms, 2.5 baths, and a nice open concept floor plan, ensuring ample space for both relaxation and productivity. The home boasts 9-foot ceilings on every level, creating a sense of grandeur and openness that invites natural light to flow seamlessly throughout. The heart of the home is a gourmet kitchen, complete with an OVERSIZED GRAND ISLAND (13’0) complete with STYLISH PREMIUM QUARTZ BACKSPLASH & COUNTER TOPS. Ideal for culinary enthusiasts and entertaining guests. Luxurious finishes abound, including PREMIUM MILLWORK, knockdown ceilings, and a sophisticated STUCCO EXTERIOR accented by elegant brick veneer. The bathrooms elevate the home's luxury with MIRRORS THAT STRETCH TO THE CEILING, enhancing the sense of space and sophistication. Thoughtfully equipped with rough-ins for AIR CONDITIONING & SOLAR PANEL, and an ATTACHED TWO CAR GARAGE, the home also includes upgrade options for convenient EV CHARGING rough-ins for modern convenience. Step outside to enjoy serene outdoor living on the DURADEK-FINSHED BALCONIES or gather around the IMPRESSIVE 42” LANDSCAPE FIREPLACE for cozy evenings under the stars. The residence is outfitted with luxurious finishes such as 8-FOOT DOORS, 4-INCH. BASEBOARD, 3” CASINGS, ensuring a refined aesthetic throughout. Buyers can also choose from TWO ELEGANT PALLETTES; THE CALIGA OR LAMBENT allowing for personalization to match your style. Living in Currie Barracks means embracing a community that honors the legacy of Canadian heros such as Captain Nicola Kathleen Sarah Goddard, after whom the NICHOLA TOWNHOMES project is named. This historic neighborhood beautifully blends tradition with modernity, offering immediate access to a nearby dog park, top-tier charter and private schools, and Mount Royal University—making it ideal for families and professionals alike. Indulge in a rich tapestry of cultural experiences, from art galleries to fine dining, all just moments away. This luxurious townhome is more than just a residence; it embodies a lifestyle of elegance, community, and honor. Don’t miss the opportunity to make this remarkable home yours. Schedule a private viewing today and immerse yourself in the luxury and legacy that awaits at Nichola
Upcoming Open Houses
Property Details
Interior
Features
Second Floor
Dining Room
10`4" x 11`10"Kitchen
12`8" x 16`7"Living Room
9`8" x 7`5"2pc Bathroom
6`0" x 5`1"Exterior
Features
Parking
Garage spaces 2
Garage type -
Other parking spaces 0
Total parking spaces 2
Property History
18






