140 Eston Cir, Calgary, Alberta T2A 0M8
Contact us about this property
Highlights
Estimated valueThis is the price Wahi expects this property to sell for.
The calculation is powered by our Instant Home Value Estimate, which uses current market and property price trends to estimate your home’s value with a 90% accuracy rate.Not available
Price/Sqft$342/sqft
Monthly cost
Open Calculator
Description
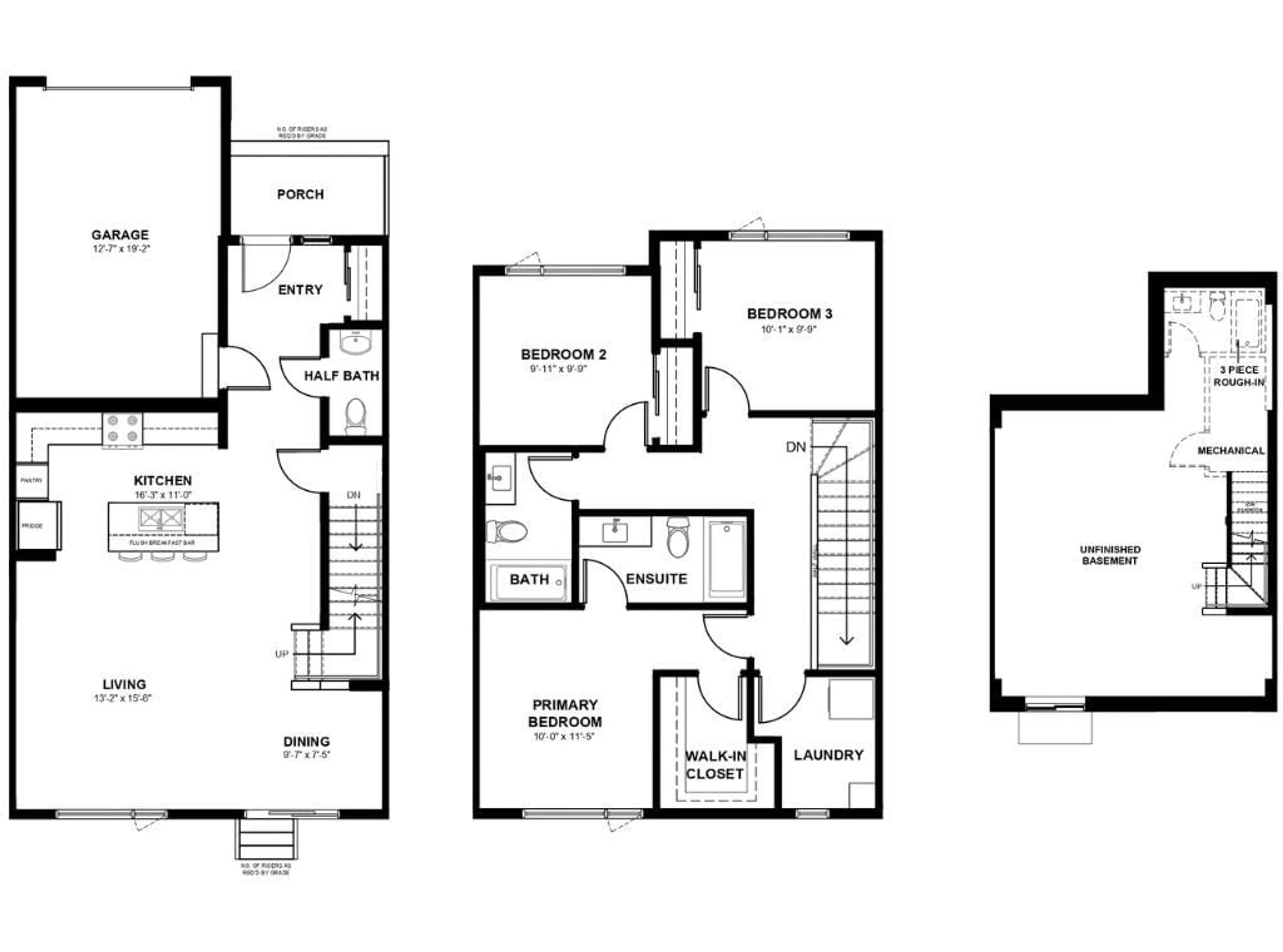
NEW BUILD TOWNHOME | NO CONDO FEES | 3 BED / 2.5 BATH / 1,516 SQ FT | SINGLE ATTACHED GARAGE + DRIVEWAY | POSSESSION Q4 2026 – Welcome to the Sable model by Minto Communities, an award-winning Canadian builder with over 70 years of experience, located in East Hills Crossing, one of southeast Calgary’s fastest-growing and most convenient communities. These thoughtfully designed townhomes feature modern finishes, functional layouts, and long-term value in a location that truly stands out. This unit offers a smart and efficient floor plan designed for everyday comfort. The main floor features a spacious kitchen complete with a kitchen island, stainless steel appliances, and ample cabinetry and storage. The dining area is conveniently located beside the kitchen, flowing seamlessly into the large living space at the back of the home. From here, step outside to your backyard that backs onto green space that is ideal for relaxing or entertaining. Back inside, the front of the home features a spacious foyer, a conveniently tucked-away 2-piece bathroom, and access to your single attached garage. Upstairs, the large primary bedroom includes a walk-in closet and a bright ensuite bathroom. Two additional well-sized bedrooms, a full 4-piece bathroom, and a generous upper-level laundry room complete the second floor. The basement is undeveloped but offers excellent potential for future development, including space for a large recreation room and an additional 3-piece bathroom. Ideally situated directly across from East Hills Crossing Shopping Centre and Costco, this location delivers unmatched convenience with shopping, dining, and everyday services just steps away. Public transit is nearby, offering a quick and easy commute to downtown Calgary. East Hills is a vibrant, well-connected southeast community known for its thoughtful planning, green spaces, pathways, and easy access to major roadways and 17 Avenue SE. Combining modern design, a functional layout, and an unbeatable location, this is an excellent opportunity to secure a brand-new home in East Hills. Don’t miss your chance to be part of this exciting community! Book your showing today!
Property Details
Interior
Features
Main Floor
2pc Bathroom
3`5" x 6`8"Dining Room
9`11" x 11`8"Kitchen
12`11" x 9`5"Living Room
12`10" x 15`7"Exterior
Features
Parking
Garage spaces 1
Garage type -
Other parking spaces 1
Total parking spaces 2
Property History
32





