167 Arbour Lake Rise, Calgary, Alberta T3G 0H1
Contact us about this property
Highlights
Estimated valueThis is the price Wahi expects this property to sell for.
The calculation is powered by our Instant Home Value Estimate, which uses current market and property price trends to estimate your home’s value with a 90% accuracy rate.Not available
Price/Sqft$442/sqft
Monthly cost
Open Calculator
Description
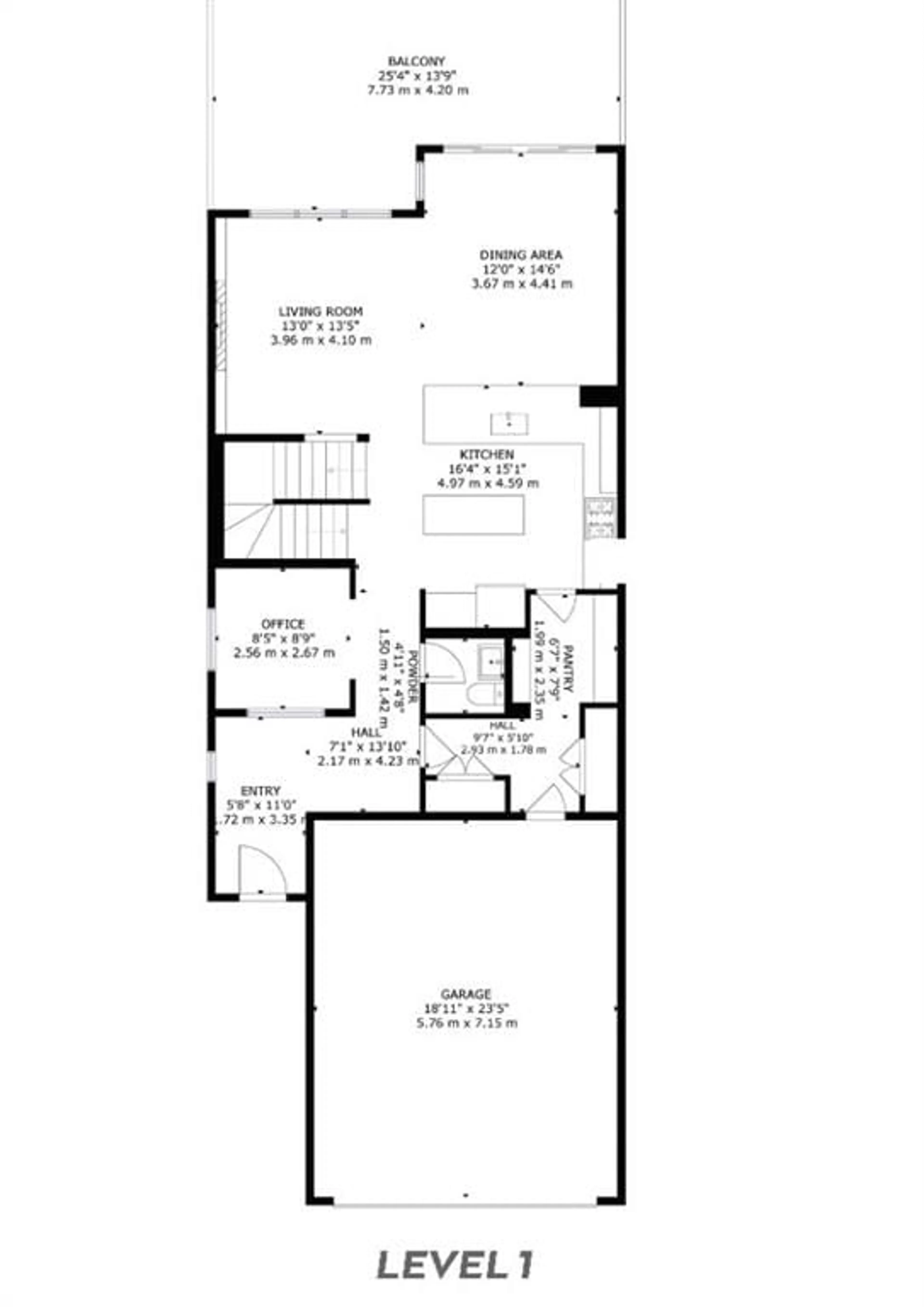
*Open House: 2–4pm Saturday Mar 14th & 1–4pm Sunday March 15th* Rare find! A stunning 2-year-new detached home in the only lake community in NW Calgary — Arbour Lake. Backing directly onto green space with beautiful mountain views, this exceptional property offers 4 bedrooms upstairs and a fully finished walkout basement, combining modern comfort with an unbeatable location. The main floor features a bright and spacious office, perfect for working from home. The modern kitchen is designed for both everyday living and entertaining, featuring a huge island, gas stove, and a large walk-through pantry conveniently connected to the garage. Upgraded 9’ ceilings extending from the second floor down to the basement create an even more open and airy living environment, while modern pot lights throughout the home add a clean and contemporary touch. The living area is filled with natural light and centered around a sleek electric fireplace. The spacious dining room opens onto a large balcony overlooking the mountains, green space, pond, and playground — the perfect spot to enjoy your morning coffee while keeping an eye on the kids playing nearby. Upstairs features luxury vinyl plank flooring throughout — a completely carpet-free home. You will find four generous bedrooms, including a primary retreat with stunning mountain views, a spacious walk-in closet, and a large ensuite. The additional three well-sized bedrooms share a spacious bathroom, and the upper-level laundry room adds everyday convenience. The walkout basement offers incredible flexibility with a modern wet bar, a large recreation area ready for your imagination, a versatile flex room perfect for an office or study, and a full bathroom. Step outside to a backyard that opens directly onto the playground and green space, leading to a scenic pond — an ideal setting for families and outdoor enjoyment. Living in Arbour Lake means enjoying one of Calgary’s most desirable four-season lake communities. Residents have access to the private lake for swimming, fishing, boating in the summer, and skating in the winter, along with tennis courts and community amenities at the Arbour Lake clubhouse. The location is incredibly convenient, within walking distance to Crowfoot LRT and Crowfoot Crossing Shopping Centre, and close to Crowfoot Library, YMCA, and excellent schools. To top it off, the home features durable cement fibre siding, offering better resistance to hail damage — an important advantage in Calgary.
Upcoming Open Houses
Property Details
Interior
Features
Main Floor
Kitchen
12`0" x 12`9"Office
8`4" x 8`8"Dining Room
13`11" x 12`0"Pantry
6`9" x 6`7"Exterior
Features
Parking
Garage spaces 2
Garage type -
Other parking spaces 2
Total parking spaces 4
Property History
49





