1005 FERNIE ROAD, Kamloops, British Columbia V2C1B4
Contact us about this property
Highlights
Estimated valueThis is the price Wahi expects this property to sell for.
The calculation is powered by our Instant Home Value Estimate, which uses current market and property price trends to estimate your home’s value with a 90% accuracy rate.Not available
Price/Sqft$300/sqft
Monthly cost
Open Calculator
Description
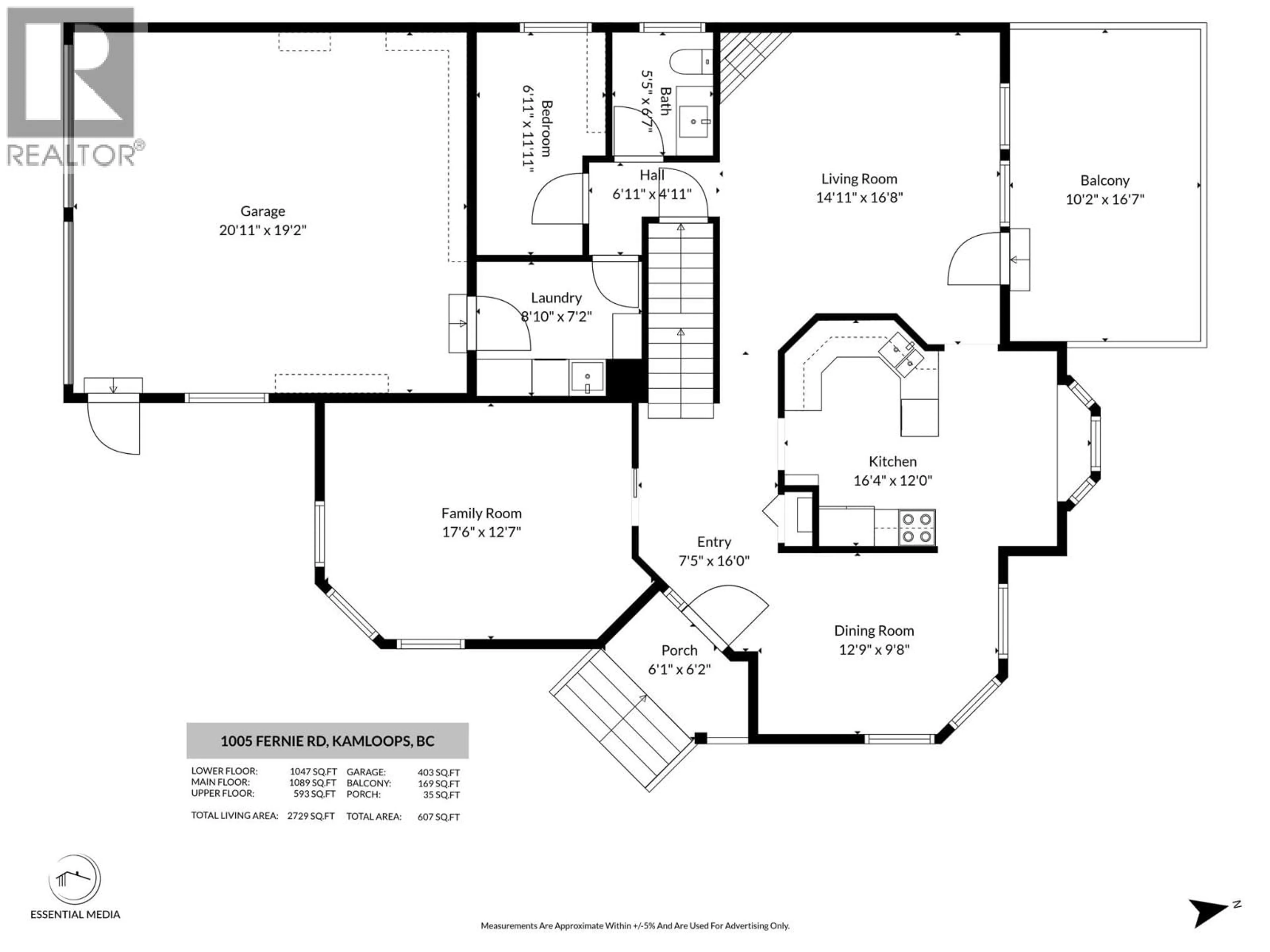
Great value in this large 2500+sqft two-storey with a view. Step inside the main floor and you are greeted with a wide entryway with a coat closet. Off the entry is a cozy kitchen with a great view that looks straight down the valley. The main floor also features a large formal living room, a dining room, & an additional living room with gas fireplace which steps out onto a deck with a superb view of the city. Off the living room is a 2pc bathroom, laundry room with sink & storage, a den, and access to the double garage. Upstairs you will find 3 bedrooms including a primary bedroom suite with a view, 2 closets, and a 3 pc ensuite bathroom. There is also a 4pc bath on the upper floor with a soaker tub. Many rooms on the main & upper floors have real hardwood floors that are in great condition. Downstairs has lots of space and potential. It is currently setup with an in-law suite that has a separate entry, full kitchen, dining area, large living room, bedroom with walk-in closet, and a 4pc bathroom. There is also a large utility room with plenty of storage space, & an additional room that could be used for more storage or as an office/den. Outside is an easy to maintain backyard with great views, underground irrigation, and mature landscaping. Other features include new roof in 2023, new hot water tank 2024, recently serviced furnace, and central A/C. Fantastic location within walking distance to TRU, shopping, restaurants, & multiple business areas. Book your showing today. (id:39198)
Property Details
Interior
Features
Additional Accommodation Floor
Full bathroom
Living room
14'3'' x 15'10''Bedroom
11'11'' x 9'10''Kitchen
8'11'' x 17'3''Exterior
Parking
Garage spaces -
Garage type -
Total parking spaces 2
Property History
69





