26 - 6380 121 STREET, Surrey, British Columbia V3X1Y9
Contact us about this property
Highlights
Estimated valueThis is the price Wahi expects this property to sell for.
The calculation is powered by our Instant Home Value Estimate, which uses current market and property price trends to estimate your home’s value with a 90% accuracy rate.Not available
Price/Sqft$450/sqft
Monthly cost
Open Calculator
Description
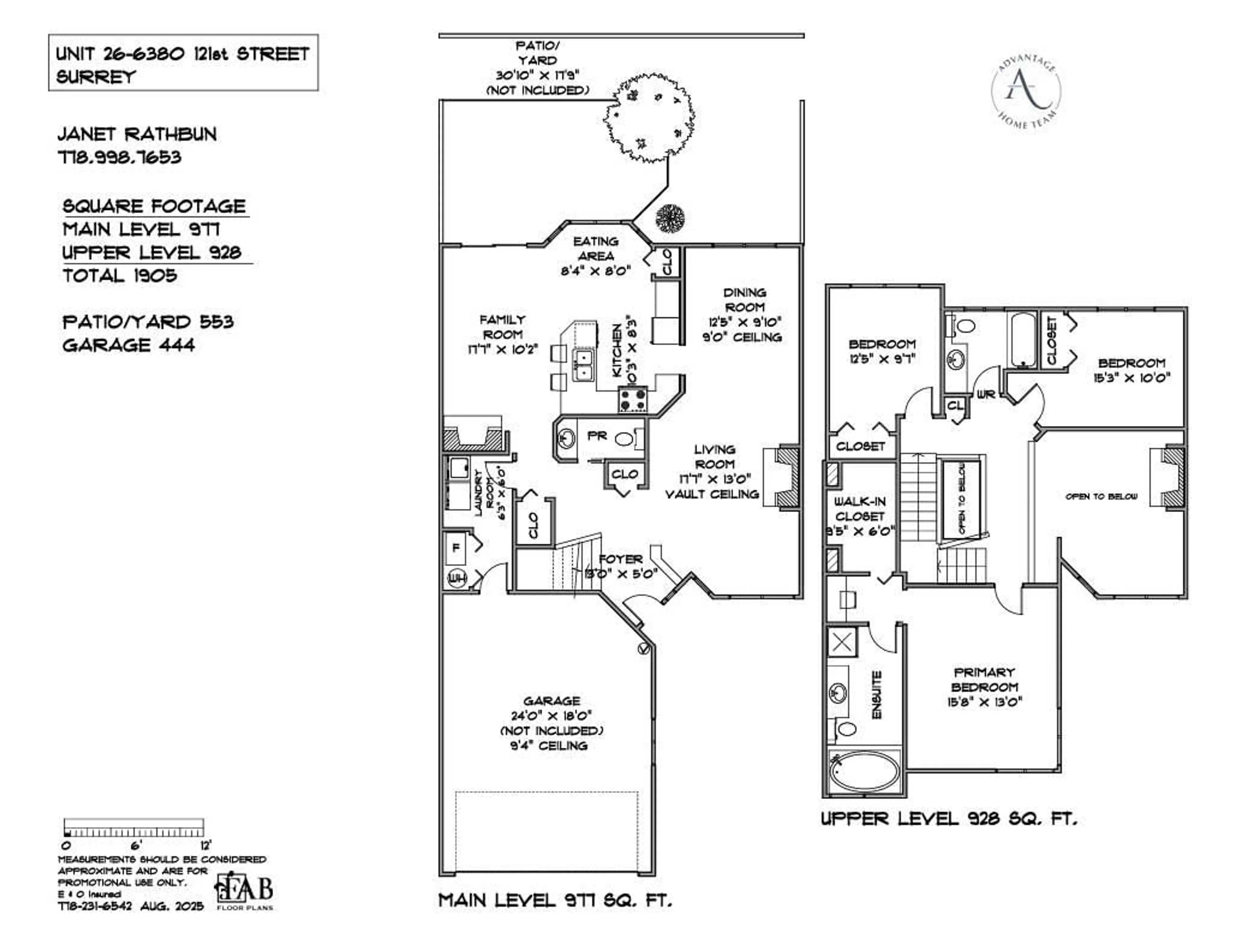
This spacious 2-level home offers nearly 2,000 sq. ft. of comfortable living space, featuring 3 bedrooms & 3 bathrooms in a well-designed layout perfect for families. The main floor showcases thick oak hardwood flooring through the kitchen & family room, complemented by sleek quartz countertops for a modern touch. Upstairs, the generously sized primary bedroom includes a large ensuite and walk-in closet, along with two additional well-proportioned bedrooms. Recent upgrades include a new furnace and hot water tank (2024), offering peace of mind and energy efficiency. The side-by-side double garage provides ample parking, with room for a third small vehicle on the driveway. Step into the peaceful, east-facing backyard, ideal for gardening or enjoying your morning coffee in the sun. Tucked away in a quiet, family-friendly complex, this home is just a short stroll to Boundary Park Lake, with easy access to transit, schools, shopping, restaurants, and major routes including Highways 99 and 91. NO AGE RESTRICTIONS! (id:39198)
Property Details
Interior
Features
Exterior
Parking
Garage spaces -
Garage type -
Total parking spaces 3
Condo Details
Amenities
Laundry - In Suite, Clubhouse
Inclusions
Property History
36




